摘要,LZZBJ9-10型號含義,LZZBJ9-10外形尺寸,LZZBJ9-10參數,LZZBJ9-10型號大全,LZZBJ9-10價格等相關LZZBJ9-10電流互感器介紹,更多電流互感器相關問題可以聯系我。
LZZBJ9-10型號介紹


LZZBJ9-10A實物圖:

LZZBJ9-10電流互感器的相關簡述
LZZBJ9-10系列電流互感器為環氧樹脂澆注全封閉支柱式產品,適用于額定頻率50Hz或60Hz、額定電壓10kV的電力系統中,作電能計量、電流測量和繼電保護用。
主要用于GZS-10(VD4、VSI)中置柜,XGN-10箱式開關柜,為方便安裝,有A、B、C三種出線方式供用戶選擇。
本產品符用IEC60044-1及GB1208《電流互感器》標準。
結構特點
本型電流互感器為支柱結構,采用環氧樹脂全封閉澆注,耐污穢及潮濕,也適用于熱帶地區。互感器不需要特別維護,只需定期地清除表面污物,由于電流互感器采用環氧樹脂澆注,尺寸小,重量輕,適宜任何位置,任意方向安裝。
LZZBJ9-10技術參數
1額客絕緣水平:12/42/75KV
2負荷的功率因數:COSФ=0.8(滯后) 測量用電流互感器在1%~120%額定電流下,在25%~100%任意負載點,功率因數Cosф=0.8~1.0范圍內,誤差均應滿足《測量用電流互感器檢定規程》(JJG313-1994)“誤差限值”的要求。特別強調,在100%額定負載、Cosф=1.0下,誤差應控制在《測量用電流互感器檢定規程》(JJG313-1994)所規定的額定功率因數下誤差限值的60%范圍內。
3額定二次電流:5A或1A;
4表面爬電距離:滿足II級污穢等級要求
5產品標準:GB1208-1997《電流互感器》
6儀表保安系數:FS≤10
IEC60044.2 互感器第1部分:電流互感器
GB156 標準電壓
GB311.1 高壓輸變電設備的絕緣配合
GB311.2 絕緣配合第2部分:高壓輸變電設備的絕緣配合使用導則
GB1208 電流互感器
GB2900.15 電工術語互感器、互感器、調壓器和電抗器
GB4109 高壓套管技術條件
GB5273 互感器、高壓電器和套管的接線端子
GB50150 電氣裝置安裝工程電氣設備交接試驗標準
GB/T1231 鋼結構用高強度大六角頭螺栓、大六角螺母、墊圈技術條件
GB/T4109 交流電壓高于1000V絕緣套管
GB/T16434 高壓架空線路和發電廠、變電所環境污區分級及外絕緣選擇標準
GB/T16927.1 高壓試驗技術第一部分一般試驗要求
GB/T16927.2 高壓試驗技術第二部分測量系統
GB/T17742 中國地震烈度表
GB/T26164.1 電業安全工作規程第1部分:熱力和機械
DL/T620 交流電氣裝置的過電壓保護和絕緣配合
DL/T726 電力用電流互感器訂貨技術條件
DL/T864 標稱電壓高于1000V的交流架空線路用復合絕緣子使用導則
DL/T866 電流互感器和電壓互感器選擇及計算導則
JB/T5357 電流互感器試驗導則

LZZBJ9-10A1GA2G電流互感器復變比參數

LZZBJ9-10A1GA2G電流互感器雙繞組參數

LZZBJ9-10A1GA2G電流互感器三變比參數
|
||||||||||||||||||||||||||||||||||||||||||||||||||||||||||||||||||||||||||||||||||||||||||||||||||||||||||||||||||||||||||||||||||||||||||||||||||||||||||||||||||
|
||||||||||||||||||||||||||||||||||||||||||||||||||||||||||||||||||||||||||||||||||||||||||||||||||||||||||||||||||||||||||||||||||||||||||||||||||||||||||||||||||
|
LZZBJ9-10型電流互感器復變比型技術參數 |
||||||||||||||||||||||||||||||||||||||||||||||||||||||||||||||||||||||||||||||||||||||||||||||||||||||||||||||||||||||||||||||||||||||||||||||||||||||||||||||||||
|
||||||||||||||||||||||||||||||||||||||||||||||||||||||||||||||||||||||||||||||||||||||||||||||||||||||||||||||||||||||||||||||||||||||||||||||||||||||||||||||||||

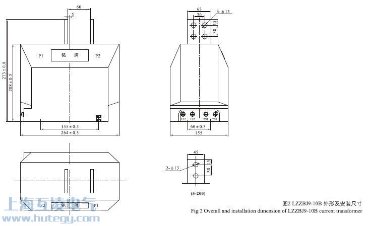
外形尺寸圖

LZZBJ9-10A外形尺寸圖(1)LZZBJ9-10A2外形尺寸圖(2)LZZBJ9-10A2外形尺寸圖(3)LZZBJ9-10A3外形尺寸圖(4)

LZZBJ9-10B電流互感器尺寸圖、LZZBJ9-10B2電流互感器尺寸圖

LZZBJ9-10C電流互感器外形尺寸圖

LZZBJ9-10C2電流互感器外形尺寸圖

LZZBJ9-10A5G1電流互感器外形尺寸

LZZBJ9-10A5G2電流互感器外形尺寸
問題1:LZZBJ9-100.5/10P10和0.5S/10P10有什么區別,用法是否相同?
差不多,主要是計量繞組的精度稍有差別,一般是用在電表計量上,0.5S的級別更高點,帶S表示在極小負荷電流下仍能保證的精度,表示在1%~120%的標定負荷范圍內,準確度都能達到0.5級,說白了也就是等級的量限寬了,精度高了,一般需與同等級的電表配合使用;
問題2:什么是LZZBJ9-10電流互感器10%誤差曲線
1、根據誤差曲線確定二次負載,如果二次負載大于允許阻抗,則電流互感器不能運行,它將影響保護正確動作和可靠性。
2、10%誤差曲線的數據中也可判斷互感器保護繞組是否合格:
1)在接近理論電流倍數下所測量的實際負荷大于互感器銘牌上理論負荷值,說明該互感器合格;
2)在接近理論負荷下所測量的實際電流倍數大于互感器銘牌上的理論電流倍數,也說明該互感器合格。
LZZBJ9-10型號大全
LZZBJ9-10A5/5電流互感器
LZZBJ9-10A10/5電流互感器
LZZBJ9-10A15/5電流互感器
LZZBJ9-10A20/5電流互感器
LZZBJ9-10A30/5電流互感器
LZZBJ9-10A40/5電流互感器
LZZBJ9-10A50/5電流互感器
LZZBJ9-10A60/5電流互感器
LZZBJ9-10A75/5電流互感器
LZZBJ9-10A100/5電流互感器
LZZBJ9-10A150/5電流互感器
LZZBJ9-10A200/5電流互感器
LZZBJ9-10A300/5電流互感器
LZZBJ9-10A400/5電流互感器
LZZBJ9-10A500/5電流互感器
LZZBJ9-10A600/5電流互感器
LZZBJ9-10A800/5電流互感器
LZZBJ9-10A1000/5電流互感器
LZZBJ9-10A1500/5電流互感器
LZZBJ9-10A2000/5電流互感器
LZZBJ9-10A2500/5電流互感器
LZZBJ9-10A3000/5電流互感器
LZZBJ9-10B5/5電流互感器
LZZBJ9-10B10/5電流互感器
LZZBJ9-10B15/5電流互感器
LZZBJ9-10B20/5電流互感器
LZZBJ9-10B30/5電流互感器
LZZBJ9-10B40/5電流互感器
LZZBJ9-10B50/5電流互感器
LZZBJ9-10B60/5電流互感器
LZZBJ9-10B75/5電流互感器
LZZBJ9-10B100/5電流互感器
LZZBJ9-10B150/5電流互感器
LZZBJ9-10B200/5電流互感器
LZZBJ9-10B300/5電流互感器
LZZBJ9-10B400/5電流互感器
LZZBJ9-10B500/5電流互感器
LZZBJ9-10B600/5電流互感器
LZZBJ9-10B800/5電流互感器
LZZBJ9-10B1000/5電流互感器
LZZBJ9-10B1500/5電流互感器
LZZBJ9-10B2000/5電流互感器
LZZBJ9-10B2500/5電流互感器
LZZBJ9-10B3000/5電流互感器
LZZBJ9-10C5/5電流互感器
LZZBJ9-10C10/5電流互感器
LZZBJ9-10C15/5電流互感器
LZZBJ9-10C20/5電流互感器
LZZBJ9-10C30/5電流互感器
LZZBJ9-10C40/5電流互感器
LZZBJ9-10C50/5電流互感器
LZZBJ9-10C60/5電流互感器
LZZBJ9-10C75/5電流互感器
LZZBJ9-10C100/5電流互感器
LZZBJ9-10C150/5電流互感器
LZZBJ9-10C200/5電流互感器
LZZBJ9-10C300/5電流互感器
LZZBJ9-10C400/5電流互感器
LZZBJ9-10C500/5電流互感器
LZZBJ9-10C600/5電流互感器
LZZBJ9-10C800/5電流互感器
LZZBJ9-10C1000/5電流互感器
LZZBJ9-10C1500/5電流互感器
LZZBJ9-10C2000/5電流互感器
LZZBJ9-10C2500/5電流互感器
LZZBJ9-10C3000/5電流互感器
LZZBJ9-10A5G5/5電流互感器
LZZBJ9-10A5G10/5電流互感器
LZZBJ9-10A5G15/5電流互感器
LZZBJ9-10A5G20/5電流互感器
LZZBJ9-10A5G30/5電流互感器
LZZBJ9-10A5G40/5電流互感器
LZZBJ9-10A5G50/5電流互感器
LZZBJ9-10A5G60/5電流互感器
LZZBJ9-10A5G75/5電流互感器
LZZBJ9-10A5G100/5電流互感器
LZZBJ9-10A5G150/5電流互感器
LZZBJ9-10A5G200/5電流互感器
LZZBJ9-10A5G300/5電流互感器
LZZBJ9-10A5G400/5電流互感器
LZZBJ9-10A5G500/5電流互感器
LZZBJ9-10A5G600/5電流互感器
LZZBJ9-10A5G800/5電流互感器
LZZBJ9-10A5G1000/5電流互感器
LZZBJ9-10A5G1500/5電流互感器
LZZBJ9-10A5G2000/5電流互感器
LZZBJ9-10A5G2500/5電流互感器
LZZBJ9-10A5G3000/5電流互感器
LZZBJ9-10電流互感器
LZZBJ9-10A電流互感器
LZZBJ9-10B電流互感器
LZZBJ9-10C電流互感器
LZZBJ9-10A5G電流互感器
5.2.1.4干式電流互感器一次接線導體的最小截面除應滿足銘牌規定的額定電流值外,還應能滿足銘牌規定的額定峰值耐受電流、額定短時耐受電流和額定短路持續時間的要求。
5.2.1.5導體直線搭接時,搭接長度不得小于導體寬度的1.5倍或100mm(兩者取大值)。
★5.2.1.6導體搭接處兩面的平整度應滿足GB/T5585.1一2005要求,接觸面的電流密度應滿足DL/T5222-2005要求。
5.2.1.7干式電流互感器接線盒標牌簡明標示其接線方式和主要數據,CT的適當處有明顯的“二次回路在運行中不許開路”的警告標記。
5.2.1.8干式電流互感器在其標示牌和結線圖上,相應的端子處均有極性標記。
5.2.1.9接地
每相電流互感器裝設兩個滿足接地熱穩定電流要求的接地極板,并配有與接地線連接用的接地螺釘,接地板位于電流互感器的兩側呈對稱布置,螺釘的直徑不小于12mm。
5.2.1.10端子
制造廠應供給連接母線用的全部緊固件(螺栓、螺母等),一次出線端子采用銅材,緊固零件使用不銹鋼,應有可靠的防銹鍍層。
二次出線端子螺桿直徑不得小于8mm,應用銅或銅合金制成,并有可靠的防銹層。二次引出線、接線端子和端子板應加強絕緣,并且具有良好的防潮性能,應具有防螺桿旋轉措施。二次接線端子應有用聚碳酸脂制成的透明防護罩。此防護罩應可方便加封,應能防止直接或間接接觸到接線螺釘。
5.2.1.11互感器的伏安特性、準確度級及額定負載均應能滿足繼電保護及儀表測量裝置的要求。
5.2.1.12當二次側開路時,二次側能承受電壓3000V/1min,每個CT的二次繞組單獨接地。應提供每種型式各參數電流互感器的磁化特性曲線和誤差曲線。每個電流互感器應獨立標號并提供接線圖
5.2.12銘牌
每臺電流互感器銘牌標志應清晰,在使用壽命期內不褪色。編碼方式可采用自動噴碼和激光蝕刻(不能采用鋼鑿碼),必須達到長期不褪色、易讀取的要求。銘牌上必須留有條形碼標志位置,且可按訂貨單位要求將條形碼直接印刷在銘牌上。銘牌與互感器本體應緊密結合,應能防偽和防撬,不允許采用不干膠進行粘貼。在互感器的本體位于二次接線端子面的上方,應用激光蝕刻出電流互感器的編號,其字體高度應不小于8mm。銘牌上應標出下述各項
a.國名。
b.制造廠名(不以工廠所在地地名為廠名者,應同時標出地名)。
c.互感器名稱。
d.互感器型號。
e.標準代號。
f.額定一次和二次電流(A)。
g.額定頻率及相數。
h.設備種類:戶內或戶外,及允許使用的最高海拔。
i.額定輸出及其相應準確級,以及有關的其他附加性能數據。
j.設備最高電壓。
k.額定絕緣水平。
l.額定短時電流:應分別標出額定短時熱電流(kA)(方均根值)和額定動穩定電流(kA)(峰值)。
m.絕緣耐熱等級(A級絕緣可不標出)。
n.帶有兩個及以上分開的二次繞組的時,應標明每一繞組的額定電壓、輸出容量范圍(VA)和其相應的準確級。
o.互感器的總重。
p.出廠序號。
q.制造年月。
r.功率因數
s.外絕緣爬距。
是否需要MC計量標示
6試驗
根據相關國標和行標等有關標準及其補充說明進行各項試驗,有關條款的特殊要求和補充應在試驗期間遵守并執行。
6.1型式試驗
型式試驗是為了驗證所設計和制造的干式電流互感器設備的性能是否能夠達到相應產品標準的要求,型式試驗的項目內容如下,具體試驗要求參見GB1028中的相關規定。
a.工頻耐壓試驗
b.全波沖擊試驗
c.截波沖擊試驗
d.溫升試驗
e.短時電流試驗
f.機械強度試驗
g.絕緣熱穩定試驗
h.耐地震能力試驗
i.一次繞組的沖擊試驗
j.戶外互感器的濕試驗
k.誤差試驗、復合誤差試驗
l.儀表保安電流測量
m.機械強度試驗
n.絕緣熱穩定試驗
★6.2出廠試驗
出廠試驗是為了發現產品所用材料和制造中的缺陷,它不應損傷產品的性能和可靠性。出廠試驗應在整體組裝后進行,應該對每臺成品進行檢驗,以確保每臺產品與已經通過型式試驗的產品相一致。出廠試驗的項目內容如下,具體試驗要求參見GB1094.6-2011中的相關規定。
a.出線端子標志試驗
b.一次繞組、二次繞組之間及對地絕緣電阻測量
c.一、二次繞組直流電阻測量
d.主絕緣工頻耐壓試驗
e.一次、二次繞組的段間及二次繞組的工頻耐壓試驗
f.二次繞組的工頻匝間耐壓試驗
g.局部放電試驗
h.誤差測量
i.伏安特性試驗
6.3現場交接試驗
干式電流互感器安裝完好并完成所有的連接后,應進行現場交接試驗。交接試驗是為了確認干式電流互感器設備在經過運輸、儲存、現場安裝和/或調整等過程后是否存在損壞、各個單元的兼容性、裝配是否正確。現場交接試驗的項目內容如下:
a.伏安特性試驗
b.繞組絕緣電阻測量
c.一、二次繞組電阻測量
d.一分鐘工頻耐受電壓試驗
e.精度驗證
f.變比試驗
7產品對環境的影響
制造廠應該提供有關設備對環境影響所需要的材料。任何已知的化學危險和環境危害應在手冊或使用說明中明確。
制造廠應該對有關設備的不同材料的使用壽命和拆除的程序給予必要的指導,對再循環使用的可能性給予簡要說明。
8企業VI標識
a.設備外立面上應有統一的中國南方電網有限責任公司企業VI標識,并符合《中國南方電網視覺識別系統管理手冊》的要求。
b.標識的內容構成:中國南方電網有限責任公司標志、“中國南方電網”中英文名稱。
c.顏色:標識采用企業標準色C100M69Y0K38,背景采用白色。
d.材質選用厚度為3mm的拉絲不銹鋼板,工藝為表面文字蝕刻、烤漆入色。
e.企業標識安裝在設備外立面正面醒目位置。
9技術文件要求
投標方應承諾在簽訂合同一個月內(項目單位填寫)提供以下所列(但不限于下列資料、圖紙、文件,投標方應承諾提供招標方提出的所有所需資料、圖紙、文件供工程設計、安裝、運維使用)的圖紙、資料、文件紙質版6套,電子版光盤2套(含AutoCAD圖)。投標方提供的所有資料均應為中文版或中英文對照版。
9.1隨投標文件一起提供的一般性資料,包括型式試驗報告(有效期內)、例行試驗報告(每臺)、特殊試驗報告、鑒定證書、安裝使用說明書、總裝圖、主要技術參數、符合技術要求的互感器運行業績和相關技術整改措施(如果有)等。
9.2在技術協議簽訂10天內,投標方向招標方提供下列圖紙資料及其AutoCAD格式的電子文檔光盤2份。
9.3供貨時,開箱資料除了9.2條所規定的圖紙資料外,還應提供下列資料,均為一式6份:
9.3.1認可圖
9.3.2最終圖
9.3.3安裝、運行、維護說明書及試驗報告
9.3.4需提供的互感器圖紙
1)總裝圖。
2)基礎安裝尺寸圖。
3)電氣原理圖。
4)銘牌圖。
5)運輸運裝示意圖,包括運輸尺寸等。
6)一次繞組和主絕緣的絕緣構造圖。
7)二次繞組接線和布置圖
8)二次端子接線圖。
9)產品說明書(安裝使用說明、技術條件、裝箱單)。
9.4設計聯絡
1)投標方應在技術協議簽訂后的10天內(項目單位填寫)向招標方提供正式版的用于設計、設備監造和檢驗、現場安裝和調試以及運行維護方面的圖紙、說明書和有關技術資料,同時向招標方設計代表提供拷貝磁盤2份(圖紙為AutoCADR2000版、文字資料為Word97版)。
2)投標方應按設計需要隨時開展設計聯絡工作,提供設計所需的相關資料,以保證招標方工期要求。
3)投標方提供的圖紙必須經招標方代表確認。
10監造、包裝、運輸、安裝及質量保證
10.1監造(建議無需建造)
1)投標方必須在簽訂合同后10天之內以書面形式提供所供設備的制造進度表。按照DL/T586-2008《電力設備用戶監造導則》的要求,招標方可隨時進廠監造。監造和檢驗人員有權了解生產過程、查詢質量記錄和參加各種試驗。
2)監造范圍包括設備的設計、加工、制造、儲運、材料采購、組裝和試驗等重要過程,關鍵部件的質量控制,進行見證、檢驗和審核。
3)運行單位的工廠監造和檢驗工作,不減少投標方對產品的質量責任,監造和檢驗人員不簽署任何質量證明。
4)投標方應在出廠前提前至少5個工作日書面通知招標方進行出廠試驗監督。
10.2包裝
1)要嚴格按照制造廠給出的說明書對設備進行包裝、運輸和儲存。制造廠應在交貨前的適當時間提供設備的運輸和儲存說明書。
2)設備制造完成并通過試驗后應及時包裝,否則應得到切實的保護。其包裝也應符合鐵路、公路和海運部門的有關規定。
3)包裝箱上應有明顯的包裝儲運圖示標志,并應標明招標方的訂貨號和發貨號。
4)設備的包裝應能保證設備各零部件在運輸過程中不致遭到臟污、損壞、變形、丟失及受潮。對于其中的絕緣部件及由有機絕緣材料制成的絕緣件應特別加以保護,以免損壞和受潮。對于外露的接觸表面,應有預防腐蝕的措施。所有運輸措施均應經過驗證。凡有運輸損壞,應由制造廠負責賠償。
10.3運輸
1)設備單獨運輸的零部件應有標志,便于用戶安裝裝配。
2)整體產品或分別運輸的部件,都要適合于運輸及裝卸的要求。
3)制造廠應提供按全部解體檢修用的備品備件和裝用機具,隨同產品發運。
4)隨同運輸的產品應附有裝箱清單,產品所需提供的技術資料應完整無缺。
10.4安裝指導
制造廠在安裝和啟動時應安排技術人員提供現場安裝指導服務,提出技術建議。
設備在現場搬運、吊裝就位和安裝時,應按照GB26164.1《電業安全工作規程第1部分:熱力和機械》的要求進行。
10.5質量保證
1)全部設備必須是全新的,持久耐用的,應滿足作為一個完整產品所能滿足的全部要求。投標方應保證設備在規定的使用條件下運行、并按使用說明書進行安裝和維護、預期壽命應不少于30年。
2)投標方應對其整組設備在到貨后提供不少于三年的“三包”質量保證。之后如發生產品損壞,投標方應及時為本組裝置提供維修部件,并按最近的投標價提供。
3)訂購的新型產品除應滿足本標準外,投標方還應提供該產品的鑒定證書。
4)投標方應保證制造過程中的所有工藝、材料試驗等(包括投標方的外購件在內)均應符合本標準的規定。若招標方根據運行經驗指定投標方提供某種外購零部件,投標方應積極配合。
5)附屬及配套設備必須滿足有關行業標準的要求,并提供試驗報告和產品合格證。
6)投標方應有遵守本標準中各條款和工作項目的ISO9000-GB/T19000質量保證體系,該質量保證體系已經通過國家認證并在正常運轉。
11一次、二次及土建接口要求
11.1電氣一次接口
/。
11.2電氣二次接口
11.2.1出線端子標志
1)出線端子應標志下列內容:
a.一次繞組和二次繞組;
b.繞組或繞組線段的極性關系。
2)標志方法
出線端子標志由字母和數字組成,字母應為大寫印刷體,并應清晰牢固地標在出線端子表面或近旁處。
3)標志內容及極性關系表征
用字母P(或L)表示一次繞組出線端子,字母S表示二次繞組出線端子,如果一次繞組為分段式,用字母C表示中間出線端子。標有P1、S1和C1的各出線端子在同一瞬間具有同一極性。
當互感器有多個二次繞組時,可分別在第一個、第二個……繞組出線端子的標志字母前冠以1、2……;當二次繞組具有中間抽頭時,可在二次繞組的首端端子的標志字母后冠以1、2……。
電流互感器的端子標志示意圖如圖11-2所示,圖11-2(a)表示互感器一次繞組分為兩組可串聯或并聯,互感器有兩個二次繞組;(將a圖刪除)圖11-2(b)表示互感器一次繞組不是分段式,互感器有兩個二次繞組,其中一個二次繞組有中間抽頭。
(a)(b)
圖11.210kV電流互感器端子標志示意圖
11.3土建接口
無。
LZZBJ9-10接線視頻
|
變比(A) |
準確級組合 |
容量輸出(VA) |
短時熱電流(KA/S) |
額定動穩定電流(KA/S) |
|
LZZBJ9-10 5~15/5 LZZBJ9-10 20~75/5 LZZBJ9-10 100/5 LZZBJ9-10 150~200/5 LZZBJ9-10 300/5 LZZBJ9-10 400~500/5 |
0.2S/10P10 |
10/15 |
100I1n 150I1n 21 31.5 45 63 |
250I1n 375I1n 52.580 52.5 112.5 130 |
|
0.5/10P10 |
10/15 |
|||
|
0.2S/10P15 |
10/15 |
|||
|
0.5/10P15 |
15/15 |
|||
|
0.2S/0.5/10P10 |
10/15/15 |
|||
|
0.5/0.5/10P10 |
20/20/10 |
|||
|
0.5/10P10/10P10 |
20/10/10 |
|||
|
LZZBJ9-10 400/5 |
0.2S/0.5 |
10/20 |
63 |
130 |
|
LZZBJ9-10 500/5 |
0.2S/0.5 |
10/15 |
||
|
LZZBJ9-10 600/5 |
0.2S/0.5 |
10/20 |
||
|
0.2S/10P10 |
10/15 |
|||
|
0.2S/10P15 |
10/15 |
|||
|
0.2S/10P20 |
10/15 |
|||
|
0.5/10P10 |
10/15 |
|||
|
0.5/10P15 |
20/15 |
|||
|
0.5/10P20 |
20/15 |
|||
|
0.2S/0.5/10P10 |
10/15/15 |
|||
|
0.5/0.5/10P10 |
20/20/10 |
|||
|
0.5/10P10/10P10 |
20/10/10 |
|||
|
LZZBJ9-10 800/5 |
0.2S/10P10 |
10/15 |
80 |
160 |
|
0.2S/10P15 |
10/15 |
|||
|
0.2S/10P20 |
10/15 |
|||
|
0.5/10P10 |
10/15 |
|||
|
0.5/10P15 |
20/15 |
|||
|
0.5/10P20 |
20/15 |
|||
|
0.2S/0.5/10P10 |
10/10/15 |
|||
|
0.2S/0.5/10P10 |
10/20/20 |
|||
|
0.2S/0.5/10P15 |
10/20/15 |
|||
|
0.2S/0.5/10P20 |
10/20/15 |
|||
|
0.5/10P10/10P10 |
20/20/20 |
|||
|
LZZBJ9-10 1000/5 |
0.2S/10P10 |
10/15 |
||
|
0.2S/10P15 |
10/15 |
|||
|
0.2/10P10 |
10/15 |
|||
|
0.2/10P15 |
15/15 |
|||
|
0.2/10P20 |
15/15 |
|||
|
0.5/10P10 |
10/15 |
|||
|
0.5/10P15 |
20/15 |
|||
|
0.5/10P20 |
20/15 |
|||
|
0.2S/0.5/10P10 |
10/20/15 |
|||
|
0.2/0.5/10P10 |
10/20/15 |
|||
|
0.2/0.5/10P15 |
10/20/15 |
|||
|
0.2/0.5/10P20 |
10/20/15 |
|||
|
0.5/10P10/10P10 |
20/20/20 |
|||
|
LZZBJ9-10 1200/5 |
0.2S/10P10 |
15/15 |
100 |
160 |
|
0.2S/10P15 |
15/15 |
|||
|
0.2/10P10 |
15/15 |
|||
|
0.2/10P15 |
15/15 |
|||
|
0.2/10P20 |
15/15 |
|||
|
0.5/10P10 |
15/15 |
|||
|
0.5/10P15 |
30/15 |
|||
|
0.5/10P20 |
30/15 |
|||
|
0.2S/0.5/10P10 |
15/15/15 |
|||
|
0.2/0.5/10P10 |
15/15/15 |
|||
|
0.2/0.5/10P15 |
15/15/15 |
|||
|
0.2/0.5/10P20 |
15/15/15 |
|||
|
0.5/10P10/10P10 |
30/20/20 |
|||
|
LZZBJ9-10 1500/5 |
0.2S/10P10 |
10/15 |
||
|
0.2S/10P15 |
20/15 |
|||
|
0.2S/10P20 |
20/15 |
|||
|
0.5/10P10 |
15/15 |
|||
|
0.5/10P15 |
30/15 |
|||
|
0.5/10P20 |
30/15 |
|||
|
0.2S/0.5/10P10 |
10/15/15 |
|||
|
0.2S/0.5/10P15 |
10/15/15 |
|||
|
0.2S/0.5/10P20 |
10/15/15 |
|||
|
0.5/10P10/10P10 |
30/20/20 |
|||
|
LZZBJ9-10 2000/5 |
0.2S/10P10 |
10/15 |
||
|
0.2S/10P15 |
15/15 |
|||
|
0.2S/10P20 |
15/15 |
|||
|
|
|
|||
|
0.5/10P10 |
30/15 |
|||
|
0.5/10P15 |
30/15 |
|||
|
0.5/10P20 |
30/15 |
|||
|
0.2S/0.5/10P10 |
10/30/15 |
|||
|
0.2S/0.5/10P15 |
10/30/15 |
|||
|
0.5/10P10/10P10 |
30/20/20 |
|||
|
LZZBJ9-10 2500/5 |
0.2S/10P10 |
15/20 |
||
|
0.2S/10P15 |
15/15 |
|||
|
0.2S/10P20 |
15/15 |
|||
|
0.5/10P10 |
60/20 |
|||
|
0.5/10P15 |
60/15 |
|||
|
0.5/10P20 |
60/15 |
|||
|
10P10/10P10 |
20/20 |
|||
|
0.2S/0.5/10P10 |
15/60/20 |
|||
|
0.2S/0.5/10P15 |
15/60/15
|
LZZBJ9-10電流過去接線圖方式:
相關的產品
一、低壓互感器類
LQZ(J)1-0.66、LQZJ4-0.66;LM-0.5;LMZ1-0.5、LMZJ1-0.5;LMZ1-0.66、LMZJ1-0.66;LMZ2-0.66、LMZ3-0.66;LMZW1-0.5、LMZW2-0.5系列;BH-0.66系列Ⅰ、Ⅱ、Ⅲ型;SDH/CDS、MES、MSQ/MFO、LN-0.66、LMK-0.66系列;LQG-0.66、LQG-0.5系列; BLZ-1K;MR、PR、RCT系列電流互感器;電度表用精密電流互感器;小型微型零序電流互感器;磁環線圈;JDZ-1、JDG4-0.5、JDG-0.5系列;JSGW-0.5電壓互感器;LYM-0.5型電流互感器等等。
二、高壓電流互感器類
LZZB1-10、LZZBJ-10、LZZJ-10、LZZQB6-10、LZZBJ9-10、LZZBJ9-10A、LZZBJ9-10B、LZZBJ9-10C、LZZBJ18-10、LZZBJ71-10、LZZBJ6-10;LZZBJ9-12(AS12/150b/2s);LM-6、LM-10、LMCD-10、LMZ1-10、LMZJ1-10Q、LMZD2-10、LMZD1-20、LMZB6-10、LMZBJ-10;LZZJ-10;LA-10、LAJ-10Q、LAZBJ-10;LFZ1-10、LFZB8-10、LFS-10、LFC-10、LFCD-10、LFSQ-10Q、LFSB-10;LQZBJ-10、LQJ8-10、LQJ-10、LQJC-10; LZJC-10; LZX-10; LDJ-10Q/210、LDZJ1-10、LZZBJ10-10;LJWD1-10、LB-10、LBZ-10;LZZW-10; LZZB7-35、 LZZBJ9-35、LDZB8-35、LCZ-35Q;LZZBW-10、12型電流互感器;LCWD1-35、LABN1-35、LB6-35、LABN6-35、LB-35、LJWD-35、LZZBJ4-35型電流互感器;真空斷路器專用互感器等等
三、高壓電壓互感器類
JDZ-6、JDZ-10、JDZ-6Q、JDZ-10Q、JDZJ-6Q、JDZJ-10Q、JDZ10-10、RZL-10、JDZX10-10、REL-10、JDZXF71-10、JDZC-10、JDZF8-10、JDZX11-10;JDZXW-10、JDZW-10、12;JDZ9-10、JDZ9-35、JDZ8-10、JDZX8-10、JDJ-6、JDJ-10、JDJ-35、JSJB-10、JSJW-6、JSJW-10、JD6-35、JDX6-35、JDJ2-35、JDN2-35、JDJJ1-35、JDJJ2-35、JDXN2-35、JDZX9-10型電壓互感器;JDZX6-35、JDZ8-35W、JDZX8-35、JDZ9-35、JDZX9-35、JDZXF71-35、JDZW-35、JDZXW-35、JSZW-6、JSZW-10、JSZW3-6、JSZW3-10、JSZG-10、JSZK2-6、10(F)抗鐵磁諧振三相電壓互感器等等。
四、零序互感器類
LXK-Φ80、LXK-Φ100、LXK-Φ120、LXK-Φ140、LXK-Φ150、LXK-Φ180、LXK-Φ200、LXK-Φ220、LXK-Φ250;LJK-Φ80、LJK-Φ100、LJK-Φ120、LJ-2、LJ-4、LJ-7;LJM-1、LJM-2、LJM-3、LJZ-Φ65、LXZ-Φ75、LJ-Φ75、LKZB-0.5、LCT-Φ100、LCT-Φ120、LCT-Φ185、LCT-Φ200、LCT-Φ250系列零序電流互感器等等。
五、計量箱、限流電抗器類
FD2放電線圈(6、10KV油浸式)、FDGE8、FDGE9干式10KV、FD2單相油浸式35KV放電線圈;JLS-6、JLS-10、JLS-35、JLSJWH-6、JLSJWH-10 、JLSJWS-6、JLSJWS-10、JLS3-10戶外油浸式高壓電力計量箱;JLSG-10、JLSZ1-10、 JLSZW-6、JLSZW-10型戶外干式高壓電力計量箱;XD1-12、XD1-14、XD1-16、XD1-20、XD1-25、XD1-30、XD1-40;XD2-12、XD2-14、XD2-16限流電抗器等等。
特殊型號規格尺寸可來電,咨詢定制。